Xây nhà trọn gói
Dịch vụ xây nhà trọn gói uy tín, chất lượng hàng đầu tại Công Ty Xây Dựng TLT.COM giá chỉ từ 4.200.000đ/m2. Chúng tôi chuyên xây nhà trọn gói khu vực TPHCM, Đồng Nai, Bình Dương và các khu vực lân cận, báo giá nhanh, chính xác, khảo sát tận nơi, không bán thầu, không phát sinh chi phí, sử dụng vật tư chất lượng, đội ngũ kiến trúc- kỹ sư và đội ngũ thợ giàu kinh nghiệm, chuyên môn cao. Liên hệ: 0976272186
Đơn giá xây căn hộ dịch vụ tại TPHCM và các tỉnh năm 2026
Năm 2026 đánh dấu giai đoạn phục hồi mạnh mẽ của thị trường nhà ở cho thuê, đặc biệt là mô hình căn hộ dịch vụ (serviced apartment), lựa chọn đầu tư được nhiều chủ nhà và nhà đầu tư hướng đến nhờ khả năng sinh lời ổn định, nhu cầu cao tại các đô thị lớn như Thành Phố Hồ Chí Minh và các tỉnh như Bình Dương, Bà Rịa Vũng Tàu, Long An, Đồng Nai, Tây Ninh, Bình Thuận, Tiền Giang và một số tỉnh lân cận.
Tuy nhiên, để triển khai thiết kế và thi công hoàn thiện một dự án căn hộ dịch vụ hiệu quả, thì việc nắm rõ đơn giá xây dựng, chi phí vật tư và nhân công cập nhật mới nhất là yếu tố then chốt giúp chủ đầu tư dự trù ngân sách chính xác lên đến 98%, tránh phát sinh chi phí giữa chừng và đảm bảo tiến độ công trình.
Trong bài viết này, chúng tôi sẽ gửi đến quý vị bảng báo giá xây dựng căn hộ dịch vụ tại TP.HCM và các tỉnh lân cận năm 2026 như (Bình Dương, Đồng Nai, Long An, Bà Rịa – Vũng Tàu, Tây Ninh, Bình Thuận,…), kèm theo phân tích chi tiết các yếu tố ảnh hưởng đến chi phí, để quý vị có cái nhìn tổng quan và lựa chọn phương án xây dựng phù hợp với quy mô dự án của mình.
Tổng quan về xây dựng căn hộ dịch vụ cho thuê
Theo xu hướng thị trường, các dự án căn hộ dịch vụ trọn gói tại TP.HCM và các tỉnh cũng chú trọng nhiều hơn đến thiết kế xanh, tiết kiệm năng lượng và ứng dụng công nghệ thông minh nhằm nâng cao chất lượng cuộc sống và giảm chi phí vận hành. Ngoài ra, mô hình này còn hướng đến sự đa dạng trong phân khúc khách hàng, từ căn hộ mini, studio đến các căn hộ cao cấp có diện tích rộng, phù hợp với nhiều đối tượng thuê khác nhau.
Việc xây dựng căn hộ dịch vụ trọn gói không chỉ là giải pháp tối ưu cho nhu cầu nhà ở hiện đại mà còn mở ra cơ hội đầu tư sinh lời bền vững trong bối cảnh thị trường bất động sản cho thuê ngày càng cạnh tranh và phát triển mạnh mẽ. Chính vì vậy, các chủ đầu tư đang dành nhiều sự quan tâm và ưu tiên đầu tư vào phân khúc này, đặc biệt tại những khu vực kinh tế năng động như TP.HCM và các tỉnh công nghiệp lân cận.


Các yếu tố ảnh hưởng đến đơn giá xây dựng căn hộ dịch vụ năm 2026
Đơn giá xây dựng căn hộ dịch vụ trong năm 2026 chịu tác động từ nhiều yếu tố khác nhau, không chỉ đến từ vật liệu và nhân công, mà còn bao gồm thiết kế kiến trúc, kết cấu công trình và điều kiện thi công thực tế. Dưới đây là những yếu tố quan trọng mà các chủ đầu tư cần quan tâm khi lập dự toán:
Vị trí và điều kiện thi công căn hộ dịch vụ
Chi phí xây dựng căn hộ dịch vụ tại TPHCM thường cao hơn so với các tỉnh lân cận do giá nhân công, chi phí vận chuyển vật liệu và chi phí mặt bằng lớn. Ngoài ra, nếu công trình nằm trong khu vực trung tâm, hẻm nhỏ hoặc hạn chế về không gian thi công, thì chi phí nhân công và vận chuyển vật tư cũng sẽ tăng đáng kể.
Quy mô và chiều cao công trình căn hộ dịch vụ
Căn hộ dịch vụ thường có từ 2–10 tầng hoặc hơn, kèm theo các hạng mục như thang máy, hầm để xe, hệ thống PCCC, khu vực cảnh quan,… Mức đầu tư cho phần móng, cọc, tầng hầm, kết cấu chịu lực sẽ cao hơn nhiều so với nhà ở dân dụng, khiến đơn giá xây dựng trên mỗi mét vuông tăng theo.
Tiêu chuẩn vật tư và mức độ hoàn thiện căn hộ dịch vụ
Chủ đầu tư có thể lựa chọn nhiều gói vật tư khác nhau trong đơn giá, từ cơ bản, tiêu chuẩn đến cao cấp. Gói vật tư càng tốt thì chi phí càng cao nhưng đồng thời giúp nâng tầm thẩm mỹ, độ bền và khả năng khai thác cho thuê tốt hơn.
Ví dụ: Sử dụng gạch chống ẩm, sơn cách nhiệt, cửa nhôm xingfa, hệ thống điều hòa trung tâm… sẽ khiến đơn giá tăng 15–30% so với vật tư thông thường.
Thiết kế kiến trúc và nội thất căn hộ dịch vụ
Một bản thiết kế thông minh, tối ưu diện tích và công năng không chỉ giúp tiết kiệm chi phí xây dựng mà còn tăng hiệu suất cho thuê. Ngược lại, nếu công trình có nhiều chi tiết phức tạp, ban công cong, giếng trời lớn hoặc nội thất âm tường cao cấp thì chi phí thi công và hoàn thiện sẽ đội lên đáng kể.
Biến động giá vật liệu và nhân công năm 2026
Theo xu hướng thị trường, năm 2026 được dự báo giá vật liệu xây dựng tại TP.HCM và các tỉnh vẫn duy trì ở mức cao do ảnh hưởng của chi phí vận chuyển, năng lượng và nguồn cung thép, xi măng, sắt, cát,… Bên cạnh đó, mức lương nhân công ngành xây dựng tăng trung bình 5–8% so với năm 2024, góp phần đẩy giá thành xây dựng tổng thể lên thêm khoảng 3–5%/m².

Bảng báo giá xây căn hộ dịch vụ tại TP.HCM và các tỉnh [cập nhật năm 2026]
Dựa trên mặt giá mặt bằng xây dựng chung giá vật liệu, nhân công và chi phí thi công thực tế năm 2026, dưới đây là bảng báo giá tham khảo cho dịch vụ thiết kế – thi công căn hộ dịch vụ trọn gói tại TP.HCM và các tỉnh lân cận như Bình Dương, Đồng Nai, Long An, Bà Rịa – Vũng Tàu, Bình Thuận,… Mức giá này có thể thay đổi tùy theo quy mô công trình, điều kiện mặt bằng và gói vật tư mà chủ đầu tư lựa chọn.
Quý vị tham khảo thêm về các dịch vụ xây dựng của TLT: Dịch vụ xây nhà trọn gói TPHCM, dịch vụ xây nhà phần thô, dịch vụ hoàn thiện nhà trọn gói, dịch vụ xây dựng căn hộ mini.
Đơn giá xây dựng căn hộ dịch vụ phần thô và nhân công hoàn thiện
Bảng đơn giá xây dựng phần thô căn hộ dịch vụ và nhân công hoàn thiện chi tiết
| Bảng giá xây dựng căn hộ dịch vụ phần thô | ||
| Gói xây dựng | Đơn giá xây nhà (VNĐ/m²) | Ghi chú |
| TP.HCM (trung tâm) | 3.600.000 – 4,500.000 |
Giá cao do điều kiện thi công phức tạp
|
| TP.HCM (ngoại thành) | 3.500.000 – 4,300.000 |
Vị trí thuận lợi, dễ vận chuyển vật tư
|
| Bình Dương, Đồng Nai, Long An, Bà Rịa Vũng Tàu, Bình Thuận,… | 3.500.000 – 4,100.000 |
Chi phí nhân công thấp hơn, mặt bằng thi công rộng rãi
|
Ghi chú: Phần thô bao gồm móng, khung, tường, sàn, mái, cầu thang, ống nước ngầm, dây điện âm tường. Nhân công hoàn thiện gồm lát gạch, sơn nước, lắp thiết bị vệ sinh, cửa, lan can, trần thạch cao,… Đối với phần thô chủ đầu tư sẽ cung cấp vật tư thiết bị hoàn thiện để nhà thầu thi công.

Báo giá xây dựng căn hộ dịch vụ trọn gói (phần thô + hoàn thiện) chìa khóa trao tay
| Bảng giá xây dựng căn hộ dịch vụ trọn gói | ||
| Gói vật tư xây dựng | Đơn giá trung bình (VNĐ/m²) | Mô tả chi tiết |
| Gói cơ bản | 4.900.000 – 5.800.000 |
Sử dụng vật tư trung bình khá, thiết bị cơ bản, phù hợp căn hộ dịch vụ quy mô nhỏ hoặc trung cấp.
|
| Gói khá | 5.600.000 – 6.500.000 |
Vật tư tốt, thiết kế tối ưu, thẩm mỹ hiện đại, phù hợp công trình 4–7 tầng cho thuê dài hạn.
|
| Gói tốt – cao cấp | 6.300.000 – 7.000.000+ |
Vật tư cao cấp, có thang máy, hệ thống PCCC, cách âm, cách nhiệt, nội thất sang trọng thi công theo yêu cầu riêng.
|
Ghi chú: Đơn giá trên áp dụng cho công trình có diện tích xây dựng từ 250 m² trở lên. Công trình nhỏ hơn quy vị vui lòng liên hệ để được tư vấn báo giá bóc tách theo diện tích thực.

Chi phí thiết kế căn hộ dịch vụ
Dưới đây là bảng đơn giá thiết kế riêng cho căn hộ dịch vụ. Đối với khách hàng ký hợp đồng xây dựng với công ty xây dựng TLT sẽ được hỗ trợ tư vấn và thiết kế hoàn toàn miễn phí.
- Thiết kế kiến trúc: 150.000 – 250.000 VNĐ/m²
- Thiết kế kết cấu: 80.000 – 120.000 VNĐ/m²
- Thiết kế nội thất 3d: 200.000 – 300.000 VNĐ/m²
Chi phí phát sinh thường gặp khi xây dựng căn hộ dịch vụ
Quý vị nên lưu ý khi xây dựng căn hộ dịch vụ sẽ có thêm phần thang máy, hầm để xe, hệ thống PCCC, hệ thống điện lạnh trung tâm, trang trí nội thất rời cơ bản,… để tránh báo giá thiếu và bị phát sinh ngoài dự kiến.
Tổng kết mức giá xây căn hộ dịch vụ tại TPHCM và các tỉnh trung bình
- Báo giá xây căn hộ dịch vụ trọn gói tại TPHCM và các tỉnh dao động từ 4.900.000 đến trên 7.000.000 VNĐ/m² tùy gói vật tư.
- Báo giá xây căn hộ dịch vụ phần thô nhân công hoàn thiện tại TPHCM và các tỉnh dao động từ 3.500.000 đến 4.300.000 VNĐ/m² tùy theo vị trí xây dựng và diện tích.

Kinh nghiệm lựa chọn nhà thầu xây dựng và tối ưu chi phí xây dựng căn hộ dịch vụ
Việc lựa chọn nhà thầu uy tín và có kinh nghiệm chuyên sâu trong lĩnh vực xây dựng căn hộ dịch vụ đóng vai trò then chốt trong việc đảm bảo tiến độ, chất lượng và kiểm soát chi phí cho dự án. Dưới đây là một số kinh nghiệm giúp tư tối ưu chi phí và đạt được kết quả như mong muốn:
Chọn nhà thầu có kinh nghiệm xây dựng căn hộ dịch vụ
Không phải đơn vị xây dựng nào cũng có đủ năng lực quản lý các hạng mục đặc thù như thang máy, hệ thống pccc, hệ thống điện lạnh trung tâm hay thiết kế tối ưu căn hộ cho thuê. Ưu tiên lựa chọn nhà thầu từng thực hiện thành công các dự án tương tự để giảm thiểu rủi ro phát sinh và sai sót kỹ thuật.
Yêu cầu báo giá xây dựng chi tiết – Minh bạch
Một báo giá rõ ràng, bóc tách và phân tích chi tiết từng hạng mục sẽ giúp chủ đầu tư dễ dàng so sánh, đánh giá và kiểm soát chi phí trong quá trình thi công được tốt hơn. Tránh chọn nhà thầu chỉ báo giá tổng mà không có giải trình cụ thể sẽ dễ thiếu sót công việc và phát sinh chi phí dự trù.
Đàm phán về điều khoản hợp đồng xây dựng hợp lý
Các điều khoản về tiến độ, thanh toán, bảo hành và xử lý phát sinh cần được thể hiện rõ ràng trong hợp đồng. Hợp đồng càng chặt chẽ sẽ hạn chế tranh chấp, đảm bảo quyền lợi của đôi bên.
Áp dụng các giải pháp tiết kiệm chi phí xây dựng căn hộ dịch vụ
- Tối ưu thiết kế: Thiết kế hợp lý giúp giảm diện tích không cần thiết, tối ưu vật liệu và nhân công.
- Lựa chọn vật tư phù hợp: Cân nhắc giữa chất lượng và giá thành, tránh lãng phí vào các vật liệu không cần thiết.
- Quản lý thi công chặt chẽ: Giám sát thường xuyên giúp phát hiện kịp thời sai sót, hạn chế hao hụt vật tư.
- Tận dụng công nghệ: Sử dụng công nghệ xây dựng hiện đại, sẽ tiết kiệm được tối đa thời gian và chi phí xây dựng.
Chuẩn bị dự phòng ngân sách phát sinh
Trong xây dựng, việc phát sinh là điều khó tránh khỏi, đặc biệt với các công trình phức tạp như căn hộ dịch vụ. Chủ đầu tư nên dự phòng khoảng 5 –10% ngân sách tổng để đảm bảo xử lý kịp thời các vấn đề phát sinh mà không làm gián đoạn tiến độ.
![]()
Dự toán chi phí xây dựng căn hộ dịch vụ theo diện tích
Dự toán chi phí xây dựng căn hộ dịch vụ là bước đầu giúp chủ đầu tư lập kế hoạch tài chính hợp lý và kiểm soát ngân sách hiệu quả trong suốt quá trình thi công. Một trong những yếu tố quyết định lớn đến tổng chi phí xây dựng chính là diện tích xây dựng của công trình.
Thông thường, chi phí xây dựng sẽ được tính trên cơ sở mét vuông (m²) diện tích sàn xây dựng, bao gồm phần móng, kết cấu, tường, mái, hệ thống kỹ thuật và hoàn thiện nội thất.
Tuy nhiên, với căn hộ dịch vụ, các yếu tố như số tầng, hạng mục tiện ích kèm theo, mức độ hoàn thiện vật tư cũng ảnh hưởng không nhỏ đến tổng chi phí xây dựng.
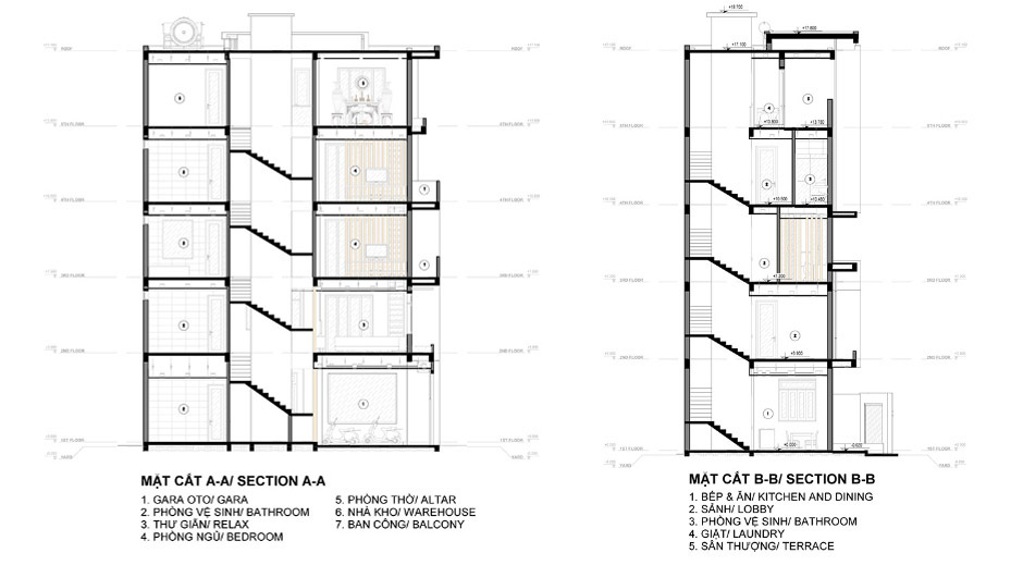
Hệ số tính diện tích xây dựng căn hộ dịch vụ từng hạng mục
Dưới đây là bảng tính hệ số diện tích xây dựng theo từng hạng mục, quý vị cùng tham khảo.

Hướng dẫn tính toán báo giá xây dựng căn hộ dịch vụ
Công thức tính chi phí cơ bản: Tổng chi phí = (Tổng diện tích xây dựng × Đơn giá trung bình) + Chi phí dự trù thêm (5%)
Ví dụ:
- Một căn hộ dịch vụ 4 tầng, tổng diện tích 380m², thi công trọn gói đơn giá 5.500.000 VNĐ/m²:
- Tổng chi phí = 380 × 5.500.000 = 2 Tỷ 090 Triệu (chưa bao gồm phần ép cọc và nội thất rời).
- Chi phí trên bao gồm phần thiết kế, thi công phần thô và hoàn thiện cơ bản. Tùy vào vật liệu, vị trí xây dựng, và yêu cầu nội thất, giá có thể thay đổi ±10–15%.
Lưu ý 1: Ngoài ra, các hạng mục đặc thù như xây hầm để xe, lắp đặt thang máy, hệ thống PCCC, và các tiện ích kèm theo cũng sẽ phát sinh chi phí riêng biệt, cần được tính toán chi tiết để dự toán sát với thực tế. Quý vị nên liên hệ với TLT để được hỗ trợ tư vấn từ thiết kế, diện tích, phong thủy đến lập bảng dự toán chi phí xây căn hộ dịch vụ theo từng hạng mục chi tiết và hoàn toàn miễn phí.
Lưu ý 2: Việc dự toán chính xác theo diện tích và đặc thù công trình sẽ mang lại hiệu quả hơn trong việc phân bổ ngân sách, lựa chọn gói vật tư phù hợp và lên kế hoạch thi công hiệu quả, từ đó đảm bảo tiến độ và chất lượng xây dựng căn hộ dịch vụ đạt kết quả tốt.
Quy trình thi công căn hộ dịch vụ trọn gói
Khảo sát và tư vấn ban đầu
- Hẹn lịch khảo sát thực tế mặt bằng, đánh giá địa chất – hạ tầng khu vực.
- Trao đổi với chủ đầu tư để nắm rõ nhu cầu, định hướng đầu tư và phong cách thiết kế mong muốn.
- Đề xuất phương án thiết kế sơ bộ và báo giá ước tính.
Thiết kế chi tiết và chuẩn bị hồ sơ pháp lý
- Hoàn thiện bản vẽ thiết kế kiến trúc, kết cấu và kỹ thuật theo yêu cầu.
- Lập dự toán chi phí chi tiết cho từng hạng mục.
- Hỗ trợ chủ đầu tư hoàn thiện hồ sơ xin phép xây dựng, các thủ tục pháp lý liên quan và ký hợp đồng thi công.
Chuẩn bị mặt bằng – thi công phần thô
- Tiến hành dọn dẹp mặt bằng, dựng rào chắn và chuẩn bị nhân lực, vật liệu.
- Thi công nền móng, hệ thống kết cấu, tường, sàn, mái, cùng hệ thống điện – nước âm tường.
- Kiểm tra và nghiệm thu từng giai đoạn để bảo đảm đúng tiêu chuẩn kỹ thuật.
Hoàn thiện công trình và lắp đặt tiện ích
- Thực hiện các hạng mục hoàn thiện: lát gạch, sơn, lắp cửa, trần, cầu thang,…
- Lắp đặt thiết bị điện, vệ sinh, chiếu sáng, điều hòa, thang máy, hệ thống PCCC, camera và tiện ích tòa nhà.
- Vệ sinh toàn bộ công trình trước khi bàn giao.
Nghiệm thu – bàn giao – bảo hành
- Chủ đầu tư cùng đơn vị thi công kiểm tra tổng thể chất lượng công trình.
- Lập biên bản nghiệm thu, bàn giao căn hộ cùng hồ sơ pháp lý đầy đủ.
- Thực hiện bảo hành, bảo trì theo cam kết, đảm bảo công trình vận hành ổn định và an toàn

Lưu ý quan trọng khi xây dựng căn hộ dịch vụ cho thuê tại TPHCM và các tỉnh
Xây dựng căn hộ dịch vụ cho thuê là một dự án phức tạp, đòi hỏi sự đầu tư kỹ lưỡng về thiết kế, thi công và quản lý để đảm bảo hiệu quả lâu dài. Dưới đây là những lưu ý quan trọng giúp chủ đầu tư tránh những rủi ro và tối ưu hóa chất lượng công trình:
Lựa chọn vị trí xây dựng căn hộ dịch vụ phù hợp
Vị trí đóng vai trò then chốt trong việc thu hút khách thuê và tăng giá trị tài sản. Chủ đầu tư nên ưu tiên các khu vực trung tâm, gần các tiện ích như trường học, bệnh viện, trung tâm thương mại, giao thông thuận tiện, khu du lịch, khu công nghiệp,…. Ví dụ: căn hộ nhỏ (6–8 phòng) phù hợp khu dân cư, quy mô lớn nên gần trung tâm, khu công nghiệp.
Thiết kế được tối ưu về công năng phù hợp với nhiều phương án sử dụng
Căn hộ dịch vụ cần có thiết kế phù hợp với đa dạng nhóm khách hàng (chuyên gia, gia đình, người độc thân,…). Tối ưu diện tích sử dụng, bố trí nội thất tiện nghi và dễ dàng bảo trì là yếu tố cần chú trọng.
Chọn vật liệu xây dựng căn hộ dịch vụ và hoàn thiện chất lượng
Vật liệu có độ bền cao, dễ bảo trì và thân thiện môi trường sẽ giúp giảm chi phí sửa chữa về lâu dài và nâng cao giá trị căn hộ. Ưu tiên vật liệu chống cháy, cách âm, cách nhiệt tốt.
Quản lý tiến độ thi công căn hộ dịch vụ chặt chẽ
Giám sát thường xuyên tiến độ và chất lượng thi công giúp phát hiện sớm các vấn đề phát sinh, tránh trễ hạn và tăng chi phí không cần thiết.
Đầu tư hệ thống tiện ích đồng bộ và hiện đại
Trang bị đầy đủ các tiện ích như thang máy, hệ thống pccc, an ninh, bãi đậu xe, khu vực sinh hoạt chung giúp tăng sức hút cho căn hộ dịch vụ.
Tuân thủ quy định pháp lý và tiêu chuẩn kỹ thuật
Tuân thủ đầy đủ các quy chuẩn xây dựng, an toàn lao động, pccc và các quy định quản lý để tránh rủi ro pháp lý và đảm bảo an toàn cho người sử dụng.
Dự phòng ngân sách và phương án xử lý phát sinh
Luôn chuẩn bị nguồn vốn dự phòng khoảng 5 -10% tổng ngân sách để kịp thời xử lý các tình huống phát sinh trong quá trình thi công và hoàn thiện.
Những lưu ý này là cơ sở giúp chủ đầu tư xây dựng căn hộ dịch vụ hiệu quả, an toàn, tiết kiệm chi phí và đảm lâu dài.

Công ty Xây dựng TLT – Tư vấn thiết kế thi công căn hộ dịch vụ
Trong bối cảnh ngành xây dựng cạnh tranh khốc liệt, việc chọn được đơn vị thi công có năng lực, uy tín và kinh nghiệm thực tế là yếu tố then chốt giúp dự án căn hộ dịch vụ đạt hiệu quả cao về chất lượng và tiến độ. Công ty Xây dựng TLT là lựa chọn đáng tin cậy nhờ những ưu điểm nổi bật sau:
- Kinh nghiệm dày dạn và chuyên môn sâu: TLT đã triển khai hàng chục công trình căn hộ dịch vụ tại TP.HCM, Bình Dương, Đồng Nai, Long An, Vũng Tàu, Phan Thiết… với nhiều quy mô khác nhau. Kinh nghiệm thực tế này giúp TLT dễ dàng xử lý mọi tình huống thi công và đảm bảo đúng tiến độ cam kết.
- Dịch vụ trọn gói – tối ưu quy trình: Khách hàng được hỗ trợ toàn diện từ thiết kế, xin phép xây dựng, thi công phần thô – hoàn thiện, nội thất cho đến hoàn công. Quy trình làm việc khoa học, minh bạch giúp kiểm soát chặt chẽ chất lượng, thời gian và chi phí.
- Đội ngũ nhân sự chuyên nghiệp: TLT sở hữu đội ngũ kỹ sư, kiến trúc sư và công nhân lành nghề, luôn làm việc tận tâm và tuân thủ tiêu chuẩn kỹ thuật – thẩm mỹ cao nhất, đảm bảo mỗi công trình đều đạt độ hoàn thiện tối ưu.
- Minh bạch trong báo giá – không phát sinh chi phí: Công ty cung cấp bảng báo giá chi tiết, rõ ràng và cam kết không phát sinh ngoài hợp đồng, giúp chủ đầu tư an tâm về ngân sách.
- Dịch vụ hậu mãi chu đáo: Sau khi bàn giao, TLT tiếp tục đồng hành cùng khách hàng thông qua chính sách bảo hành – bảo trì chu đáo lên đến 5 năm, cùng tư vấn giải pháp tối ưu trong quá trình sử dụng.
- Thương hiệu được khẳng định: Với nhiều năm hoạt động và hàng loạt công trình lớn nhỏ thành công, TLT đã xây dựng được uy tín vững chắc, trở thành đối tác tin cậy của nhiều chủ đầu tư tại TP.HCM và khu vực lân cận.
Như vậy qua bài viết trên việc xây dựng căn hộ dịch vụ tại TP.HCM và các tỉnh không chỉ là xu hướng tất yếu trong thị trường nhà ở hiện nay mà còn mở ra nhiều cơ hội đầu tư sinh lời bền vững. Việc lựa chọn đơn vị thi công uy tín, chuyên nghiệp sẽ giúp tiết kiệm thời gian, chi phí và đảm bảo chất lượng công trình đạt chuẩn, sẵn sàng vận hành hiệu quả.
Từ khâu tư vấn thiết kế, lập dự toán, thi công đến bàn giao và bảo trì, đều được đồng bộ, mang lại giải pháp toàn diện, trọn gói cho căn hộ dịch vụ của quý vị.

Quý khách xem thêm về giá xây nhà trọn gói Bình Dương, giá xây nhà trọn gói Vũng Tàu, giá xây nhà trọn gói Tây Ninh, giá xây nhà trọn gói Long An, giá xây nhà trọn gói Đồng Nai.
Liên Hệ: Công Ty Xây Dựng TLT.
Điện Thoại: 0976272186 | Zalo: 0917341516.
Email: kientrucxaydungtlt8688@gmail.com
Website: https://xaydungtlt.com/
Văn Phòng 1: Số 51 Đường Số 3, Khu Đô Thị Vạn Phúc, QL13, P. Hiệp Bình, TP.HCM.
CN1: 200/78/19 Bưng Ông Thoàn – P. Phú Hữu – Tp. Thủ Đức – TPHCM.
CN2: 68 – Hẻm 1 – Tổ 3B – KP Hương Phước – P. Phước Tân – TP Biên Hòa – Đồng Nai.
CN3: Đường Dk4A – Kp3A – P. Thới Hoà – TP. Bến Cát – Bình Dương.
Xưởng cơ khí – Nội Thất: 261A Bưng Ông Thoàn, Phường Tăng Nhơn Phú, TPHCM.
Nguồn bài tại: https://xaydungtlt.com
BÀI VIẾT LIÊN QUAN
Đơn giá xây căn hộ dịch vụ tại TPHCM và các tỉnh năm 2026
Năm 2026 đánh dấu giai đoạn phục hồi mạnh mẽ của thị trường nhà ở cho thuê, đặc biệt là mô...
Xem chi tiếtChi phí xây nhà 2 tầng tại Tp.HCM – Bảng giá chi tiết & Lưu ý quan trọng
Trong những năm gần đây, nhu cầu xây dựng nhà 2 tầng tại TP.HCM ngày càng tăng cao. Với tốc...
Xem chi tiếtGiá xây nhà trọn gói tại Quận 10 năm 2026 – Xây Dựng TLT
Dịch vụ xây nhà trọn gói là gì? Có nên chọn hình thức xây nhà trọn gói không? Giá xây...
Xem chi tiếtDịch vụ xây dựng nhà tại Củ Chi – Miễn phí bản vẽ thiết kế
Công ty xây dựng nhà Củ Chi. Khi quý khách đang chuẩn bị lên kế hoạch xây dựng ngôi nhà...
Xem chi tiếtDự toán chi phí xây nhà tại Thái Mỹ: Tất tần tật những điều cần biết
Dịch vụ xây nhà trọn gói tại Thái Mỹ là một trong những dịch vụ phổ biến được nhiều gia...
Xem chi tiếtXây nhà trọn gói gồm những gì? Bao nhiêu tiền một mét vuông
Giá xây nhà trọn gói bao nhiêu 1m2 (mét vuông) có thể thay đổi tùy thuộc vào nhiều yếu tố...
Xem chi tiết“Tư vấn” báo giá xây nhà năm 2026 tại các tỉnh thành – Bóc tách không phát sinh
Quyết định xây dựng nhà ở là một cột mốc lớn, đánh dấu sự khởi đầu của một không gian...
Xem chi tiếtTư vấn xây nhà trọn gói tại Kiên Giang – Xây Dựng TLT
Tại sao dịch vụ xây nhà tại Kiên Giang của xây dựng TLT lại được ưa chuộng? Trong bối cảnh...
Xem chi tiếtCông ty xây nhà trọn gói tại Hậu Giang – Xây dựng TLT
Bài viết này công ty xây dựng TLT sẽ cung cấp những thông tin chi tiết về dịch vụ xây...
Xem chi tiết

